GEZE Vrijloopdeurdranger TS 5000-EFS (155479) kozijn/kop montage
GEZE Vrijloopdeurdranger TS 5000-EFS (155477) Kopmontage
De GEZE TS5000 EFS (155477) is een hoogwaardige vrijloopdeurdranger voor brand- en rookwerende deuren. Tijdens dagelijks gebruik opent en sluit de deur zonder merkbare weerstand, ideaal voor situaties waar toegankelijkheid belangrijk is. Bij brand schakelt de dranger automatisch in en sluit de deur veilig en gecontroleerd. Montage op het kozijn (kopmontage), aan de scharnierzijde. Perfect voor zorg, appartementen, scholen en utiliteitsbouw.
Wat is een vrijloopdeurdranger?
Een vrijloopdeurdranger is een deurdranger die pas activeert bij brandalarm of rookdetectie. Tijdens normaal gebruik voelt de deur zo licht als een deur zonder dranger: je kunt de deur zonder merkbare weerstand openen en sluiten.
Pas wanneer de gekoppelde rookmelder of brandmeldinstallatie een signaal geeft, schakelt de dranger over naar normale sluitkracht, waardoor de deur automatisch en gecontroleerd sluit.
Waarom is dit zo’n unieke deurdranger? (TS5000 EFS – 155479)
De GEZE TS5000 EFS is een zogenoemde EFS-uitvoering: Electric Free Swing. Het bijzondere aan dit model is dat het vrijloopmechanisme elektrisch wordt aangestuurd, extreem betrouwbaar is en geschikt is voor situaties waar deuren normaal gesproken moeilijk te openen zijn — bijvoorbeeld bij zware binnendeuren of toegangsdeuren in zorginstellingen.
Belangrijke unieke eigenschappen:
Vrijloopfunctie: deur voelt volledig vrij tijdens dagelijks gebruik.
Automatische sluiting bij brand dankzij elektrische vrijloopmodule.
Geschikt voor brand- en rookwerende deuren.
Zeer lage openingsweerstand — ideaal voor ouderen, kinderen en mindervaliden.
Constante kwaliteit en sluitkracht (EN 1154 / EN 1155).
GEZE-specifieke precisie en duurzaamheid — marktleider in vrijlooptechniek.
Waar wordt de TS5000 EFS voor gebruikt?
Deze deurdranger wordt vooral toegepast op locaties waar deuren:
onder normale omstandigheden zo licht mogelijk te openen moeten zijn;
bij brand verplicht automatisch moeten sluiten;
voldoen aan regels voor vluchtwegen, rookcompartimenten en brandwering.
Denk aan:
zorginstellingen en ziekenhuizen
appartementencomplexen
scholen en kinderdagverblijven
kantoren en utiliteitsbouw
gangen, trappenhuizen en brandscheidingen
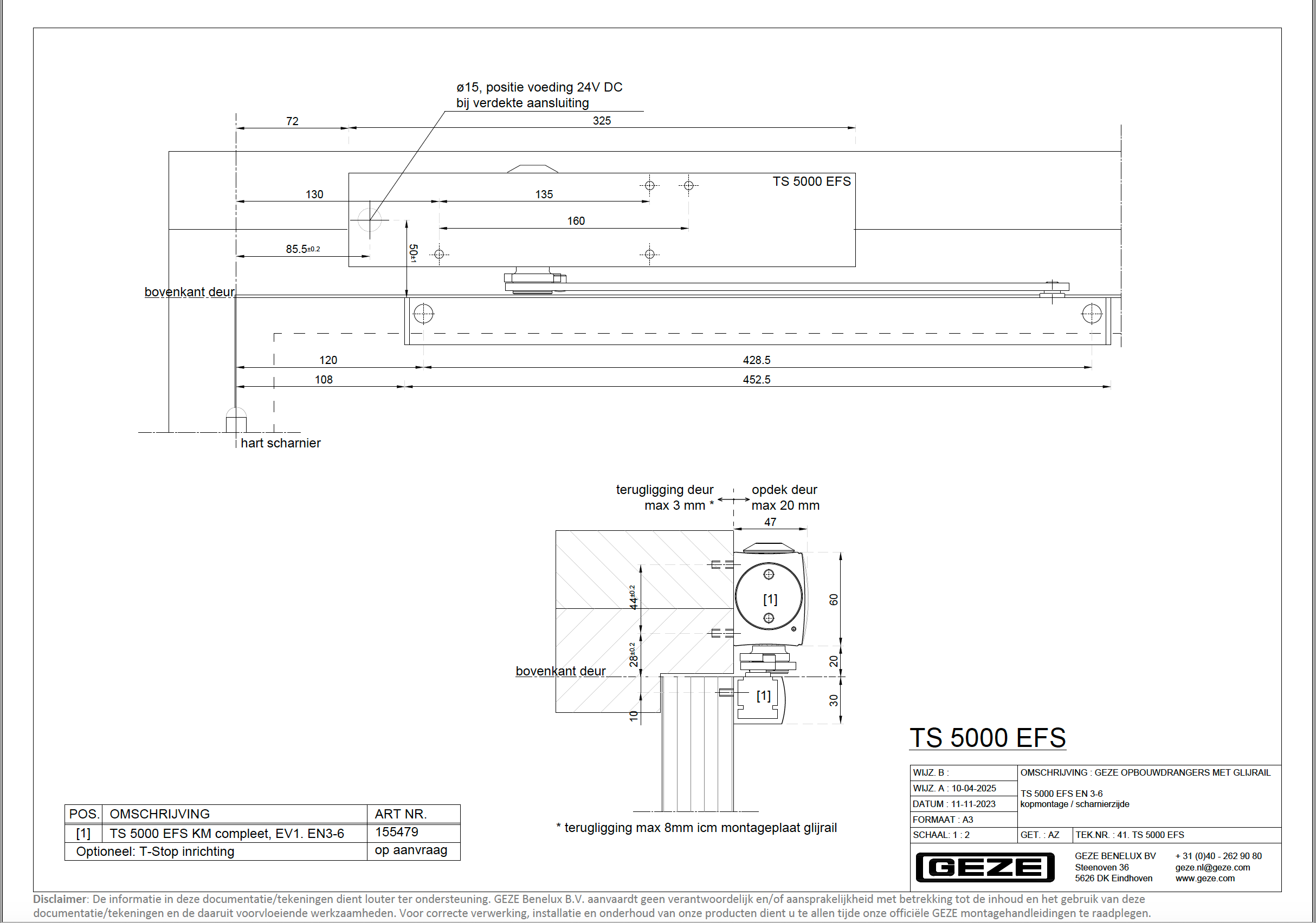
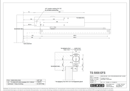
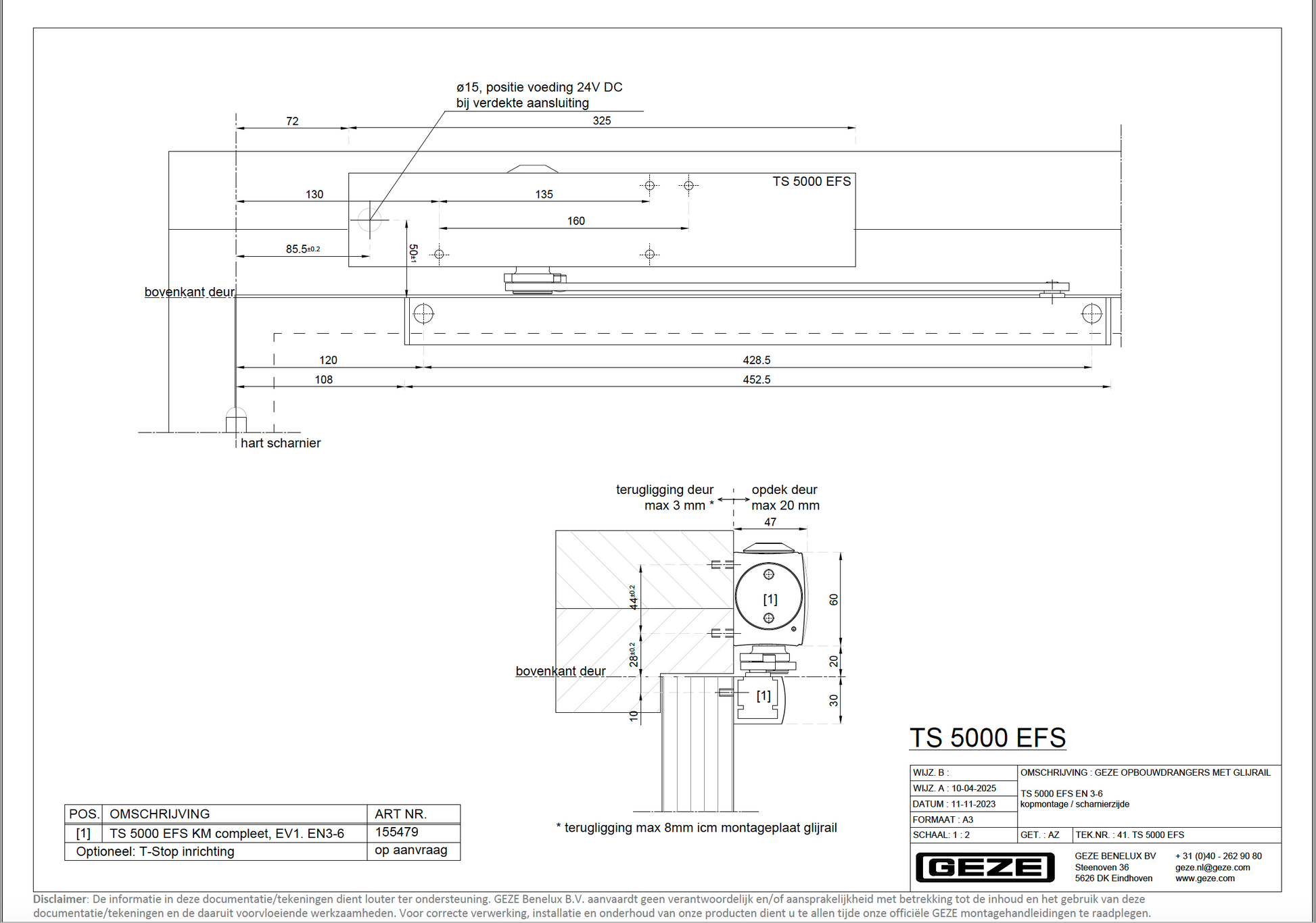
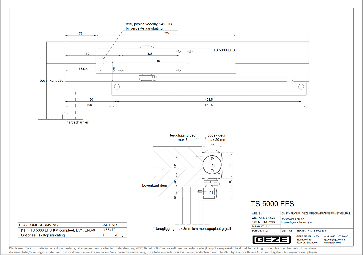
Montage van deze uitvoering (art.nr. 155479)
Voor dit artikelnummer geldt:
Montage op het kozijn
Aan de scharnierzijde
Compleet met EFS-vrijlooparm
Geschikt voor enkel-slag deuren
Deze combinatie zorgt ervoor dat de vrijloopfunctie optimaal werkt én voldoet aan de eisen voor brand- en rookwerende deuren.
Montage
Deze deurdranger is geschikt voor zowel links- als rechtsdraaiende deuren.
Kopmontage: deurdranger op het kozijn, arm op de deur; de deur wordt naar u toe geopend.

In de doos
Deurdranger
Glij-arm vrijloop EFS
Externe kabelovergang tbv 24Vdc voeding
Schroeven en bevestigingsmateriaal
Handleiding
montagemal
Beschermdop t.b.v. de as
Afdekkap voorzijde
Inbussleutel
Technical Specifications
| Specification Details | Details |
| Uitvoering | Glij-arm |
| Kleur | Zilverkleurig |
| Sluitkracht | EN-2, EN3, EN 4, EN 5, EN 6 |
| Draairichting | Links en Rechts draaiend |
| Merk | GEZE |
| Type | Vrijloopdeurdranger |
| Deurbreedte | Tot 1500 mm |
| Gewicht van uw deur | 50-150 KG |
| Montage deurblad | Op Kopmontage oftewel Trekzijde |
| Toepassing | proffesioneel |
| Kracht instelbaar na montage | ja traploos aan voorzijde |
Video's
Bekijk hieronder beschikbare videos over deze deurdranger.
Handleidingen
Voor meer informatie over de montage, download hieronder de handleiding.



